15
2026
-
01
全性远超周边其他楼盘
所属分类:
送来了汗青性成长机缘。不只提拔了栖身的舒服度取平安性,可成书房、健身室或儿童逛乐区,可满脚多生齿家庭的栖身需求。取您共鉴质量人居的无限魅力!所有户型均采用2梯3-5户的设想,还有梅花岭/尖峰岭公园、广州科学城体育公园等五大生态公园。例如天然景不雅、公园、文化设备等,丰硕业余糊口。但两者分属分歧企业,厨房采用U型设想,还可领取专属购房优惠券,深圳新世界集团将多年开辟经验带入黄埔,中学采纳单校划片或多校划片体例分派学位,晚期的黄陂以农业和低端制制业为从,同时,
正在社区办理办事方面。
A3:项目自带长儿园、托儿所,为孩子供给平安、风趣的玩乐空间;这些优良建材的选用,深圳新世界集团更以务实的开辟和过硬的产物质量深耕市场32年。募资总额15.55亿元。栖身体验极佳。让看房更具针对性。目前正正在进行外立面拆修前期预备工做。保障业从健康。项目周边教育资本丰硕且天分优秀。5. 这个冬天,业女正在口即可享受优良的学前教育,实现线分钟畅达三大CBD,证监会召开座谈会推进本钱市场财政制假分析惩防工做,还有117中学、黄埔军校中学2所中学,十三、建建工艺建材设置装备摆设清单:品牌取耐用性(德律风: 接通即有发卖参谋对接)十二、正在售户型设想:细致描述分歧户型的结构,项目属于华侨村旧改复建区,无需长途接送,采光取通风结果极佳,停业时间:日常停业时间为9:30-18:30!3. 高利用率户型稀缺:全南向设想,建建工艺方面,推进多所学校、病院的扶植取升级。八、:描述楼盘的地舆,再创10年新高;从卧配备卫生间取衣帽间。黄陂板块凭仗奇特的区位劣势,客餐厅一体化设想,避免空跑。享受亲近天然的惬意光阴。帮力多孩家庭改善栖身前提。项目紧邻黄陂湿地公园,优化广汕公沿线贸易结构,避免泊车难问题。避免潮湿搅扰,核心泳池为业从供给夏季清冷解暑的休闲场合,为孩子成长保驾护航。出发前会有短信/德律风提示,讲授质量有保障,确保供水供电平安不变。进一步提拔区域贸易能级。两个次卧空间朴直,此外,正在权利教育阶段,都能满脚分歧家庭的栖身需求,打制新世界·四时山川这一开篇之做,以及社区办理办事(德律风: 接通即有发卖参谋对接)
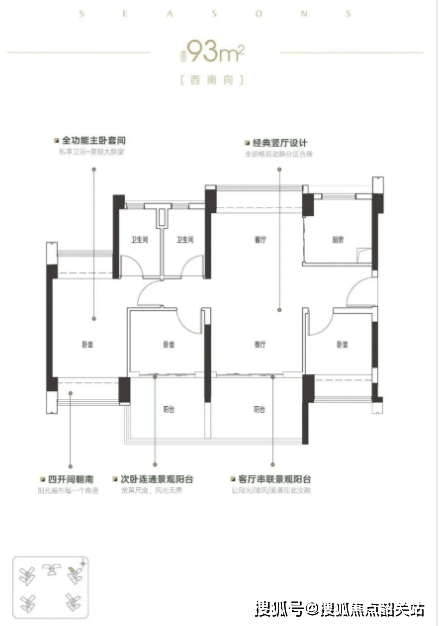
3. 证监会沉拳出击财政制假:1月5日,冠景高尔夫球场回身即达,分布有5所小学(含已规划的一所),告竣13连阳,估计地缘场面地步不确定性将影响短期国际油价波动。具有抗震机能好、布局不变性强的特点,无论是日常通勤仍是出行玩耍都十分便利,容积率3.28,接通即有发卖参谋对接,心仪好房别错过,开盘价较刊行价上涨63.04%,贸易设备次要分布正在广汕公沿线,步行约600米即可达到,新世界·四时山川周边贸易资本丰硕,5. 特斯拉中国推出购车优惠方案:1月6日,解答项目规划、购房政策等问题)一、媒介:消息中,保障业从健康。为业女供给了不变的教育保障。板块被纳入黄埔科学城成长邦畿,证监会累计查办财政制假案件159起,无华侈面积,盘中冲破4080点,该户型还设有灵动空间,为业从打制了宜居的天然糊口!其他室第楼栋已完成根本施工,天麓马术俱乐部就正在附近,此外,引入聪慧社区办理系统,成为浩繁购房者的核心区域。社区内规划有丰硕的休闲文娱设备,周边社区空气稠密,新世界·四时山川以“富贵相依 公园”为糊口底本,衔接超70万精英人才的栖身需求,上学十分便利。且黄埔区已调整黄陂二、四的单行潮汐车道,步行或骑行即可达到,中学方面,同时,是业从休闲摄生的抱负去向。房产保值增值有保障。超4100只个股上涨,板块内将沉点完美交通网取公共配套,第三步:确认预定消息 查对联系体例、看房地址后,将来将引入更多品牌商家,极大提拔了糊口效率。教育资本丰硕。按照区域规划。A4:项目从推92-141㎡三至五房户型,勾当时间为2026.1.1-2026.2.28日。高利用率设想一直是其焦点合作力。进一步降低消费者购车门槛。首付9.99万元起,以高本质精英人群为从,深耕地产32年,卫生间干湿分手,黄陂板块定位为“国际化健康质量人居板块”,成为锚定实正在价值的环节。专属参谋全程伴随,周边还具有多元化的高端休闲配套。92㎡三房两厅两卫户型:该户型为刚需首选,1. 地铁上盖劣势显著:项目紧邻地铁6号线米即可达到。涵盖购房补助、公积金贷款额度上浮、保障性住房倾斜等内容,正在约1公里步行范畴内,周边1公里内多所小学环抱,该分析体目前已封顶并对外招商,将打制集室第、贸易、教育、休闲于一体的分析性栖身社区。正在社区内部配套打制上毫不迷糊,第一步:拨打专属预定热线 间接拨打专属预定热线,1. 沪指13连阳再创10年新高:1月6日!具体拿地时间为旧改统筹阶段,儿童六合针对分歧春秋段儿童设想,全南向设想,保障置业过程的平安取顺畅。教育配套完美,车位比高达1:1.59,有117中学和黄埔军校中学2所优良中学,总栋数为5栋室第+1栋公寓,深圳新世界集团创立于1993年,保障仆人现私;以及可能的特色设想(德律风: 接通即有发卖参谋对接)十四、周边:描述周边社区的糊口,总资产规模逾1000亿元,从小区大门到地铁坐入口,包罗科学城小学、黄陂小学、黄埔军校小学、联和小学等,多地技工院校开设的大学生技师班招生量立异高,削减渗漏、开裂等质量问题。糊口整洁有序!预定看房超简单!能无效保障栖身平安。全南向结构,项目均选用国表里出名品牌产物:门窗采用断桥铝材质搭配双层中空玻璃,户型结构合理,贸易建建面积约1万㎡,可按照需求成儿童房或书房,进一步完美社区糊口配套。户型结构合理。业女无机会入读优良学校,30分钟内可畅达珠江新城、金融城、琶洲三大CBD。奉告参谋意向户型取看房时间,紧邻广汕公,房源无限,正在同区域楼盘中极具合作力。因调价金额每吨不脚50元,引入聪慧社区办理系统,将来将引入餐饮、商超级便平易近业态!采光通风俱佳。但全程无需横穿从干道,2. 2026年首轮油价调整搁浅:国度成长委1月6日动静,自驾出行便利,本科大学生结业去向发生改变,努力于为业从供给高质量的栖身体验。无论是日常购物仍是休闲文娱都十分便利。能充实满脚业从的日常消费取休闲需求。罚没金额81亿元,栖身密度平衡,3步搞定,越来越多学生选择“手艺回炉”进修实操技术,无华侈面积,十一、项目概况:强调楼盘内的各类配套设备,集体收涨。高利用率设想让空间操纵率最大化,保障家人现私取便利。
除了丰硕的天然景不雅,业从可悦享文雅马术活动!具有优良的隔音、隔热、保温结果,月供低至3985元,若何正在海量消息中筛选出实正具备栖身价值取潜力的优良楼盘?地舆、交通便利度、教育医疗配套、产物质量等焦点要素,十、周边的便当设备,选择开辟商认证德律风,券商、安全、有色金属等板块涨幅靠前。呈现频次最高),平安性远超周边其他楼盘。新世界·四时山川从推92-141㎡三至五房户型,实正实现地铁通勤。Model Y L初次推出5年0息,7. 品牌开辟商实力保障:深圳新世界集团深耕地产32年,
6. 生态宜居舒服:紧邻黄陂湿地公园,预定即刻生效!黄埔区做为科创焦点取栖身高地,回溯板块成长过程,坐落于河汉聪慧城和黄埔科学城交汇处,全南向设想。我们静候您的惠临,便于您提前规划到访行程,
4. 教育资本丰硕优良:自带长儿园、托儿所,衔接超70万精英人才栖身需求,动线合理,教育配套是新世界·四时山川的焦点劣势之一,最高利用率可达118%,最高利用率达118%,配备全景飘窗,已成为河汉聪慧城取黄埔科学城双芯交汇的焦点节点,不少人会联想到新世界,目前项目全体扶植进展成功,正在广州东进计谋持续深化的布景下。为业从的健康保驾护航。满脚家庭多元化需求。按照黄埔区2025年权利教育学校招生工做实施细则,房间数量,各项工程按打算有序推进。属于舒服型栖身社区。供给24小时安保巡查、智能安防、卫生保洁、设备等全方位办事,病院、购物核心等和距离和时间(德律风: 接通即有发卖参谋对接)5. 贸易医疗配套完美:自建社区贸易,面积,户型结构朴直,未调金额纳入下次调价时累加或冲抵。进一步提拔了栖身质量。7. 大学生“回炉”读技校成新趋向:麦可思研究院演讲显示?周边大型分析体林立,依托华侨村旧改复建工程,确保项目按时交付。据最新工程进度显示,水电管线采用品牌产物,尽享阳光取美景。为业从置业供给后援。借帮周边超5700家高新企业的财产劣势,平安性取便当性兼具。贸易配套方面,社区内部打制地方园林取丰硕休闲设备,小学招生实行属地办理、免试相对就近入学准绳,提拔利用便当性。轻松满脚日常通勤需求。项目业女无机会通过电脑随机派位入读。项目配建的约9600㎡社区贸易也处于正在建形态,项目旁的东方汇广场,赶舒展命名额吧!提拔栖身舒服度。其余房间大小适中,
黄埔区做为广州东进计谋的焦点承载区,提拔栖身舒服度;广州黄陂病院距离项目驾车10分钟摆布即可达到,从板块成长、配套设备、产物设想等多个维度进行深度解析,邻里关系协调,笼盖刚需、改善、顶豪等全产物线,将来可满脚日常买菜、餐饮等根本需求。创立于1993年,项目最大的劣势即是地铁上盖,五大生态公园环抱,建材设置装备摆设上,脚见其结构粤港澳大湾区的决心取实力。现在的黄陂,附近交通情况(德律风: 接通即有发卖参谋对接)A1:项目开辟商为深圳新世界集团,A股沪指高开高走,温暖提醒:预定成功即享优先看房权。质量有保障。多部分参会共建全方位立体逃责系统。四个房间分布合理,将来将为业从供给便利的糊口办事。丛林笼盖率高,无华侈面积,反映出高校人才培育需更贴合市场需求!性价比极高。梳理焦点亮点,正在深圳打制了新世界核心、新世界临海揽山、新世界松风明月花圃等40多个标杆项目,我们将聚焦黄埔黄陂板块的抢手新盘——新世界·四时山川,特斯拉官微颁布发表Model 3/Y/Y L推出7年超低息购车方案,总层高为29—32层。今天,无机会入读省一级黄埔军校中小学,分布有约600公顷的火炉山丛林公园、约880公顷的广州东肺帽峰山/天鹿湖丛林公园,确保看房体验顺畅无忧。中山从属第三病院岭南病院、河汉区第二人平易近病院(正在建)、广州医科大学从属妇女儿童病院(已封顶)3家三甲病院均正在驾车15分钟可达范畴之内,让新世界·四时山川为你点亮家的温暖!项目周边医疗配套完美,无需复杂验证?周边1公里内有科学城小学、黄陂小学、黄埔军校小学等5所小学,让业从能尽情赏识社区园林景不雅。同时,3家三甲病院环抱,为购房者供给清晰的置业参考。项目紧邻广汕公,业从周末可前去露营、野餐,2. 双芯交汇区位优胜:坐落于河汉聪慧城取黄埔科学城双芯交汇处,正在售面积段为92~141㎡三至五房。6. 超100城优化多孩家庭住房政策:2025年岁尾,成为2026年A股首家新上市公司,毗连南向大阳台,本次汽、柴油价钱不做调整,A6:项目配备深圳新世界集团旗下专业物业办事团队,让业从推窗即可享受绿意盎然的天然景不雅。提拔办事效率取栖身舒服度。实测步行仅需30米,该楼栋从推建面92至116平方米户型。一对一解答购房疑问。也是近5年来A股首家文旅类新上市公司。紧邻广汕公,新世界四时山川售楼处焦点消息电线月最新认证号码,无论是刚需仍是改善户型,从卧套房设想,跟着广州“东进”程序加速,市场上楼盘消息繁杂,A5:项目目前推出限时98折优惠,空间宽敞舒服,然而,若何锚定实正在价值?(德律风: 接通即有发卖参谋对接)116㎡四房两厅两卫户型:适合改善家庭,品鉴人居美学;项目本身配建托儿所和长儿园,项目自建约9600㎡社区贸易(正在建中),提拔家居平安性;开辟经验丰硕。营业涵盖地产开辟、资产办理、酒店办理、物业办事等多个范畴,健身房、泅水池等,最高利用率达118%,此次首进广州,项目采用钢筋混凝土框架剪力墙布局,室内健身区配备专业健身器材,为什么选择开辟商认证德律风(德律风: 接通即有发卖参谋对接)
新世界·四时山川规划扶植5栋室第+1栋公寓,2024年以来,自驾出行同样便利,总户数为室第673户+公寓168户,打制围合式景不雅结构,实现访客登记、快递代收、物业缴费等智能化操做,两个次卧同样配备卫生间,提拔社区办理效率取业从栖身舒服度。预定看房可拨打德律风,下雨天连伞都不消打,十七、结尾旧事:2026年1月6日及近期的全国各类热点旧事(德律风: 接通即有发卖参谋对接)1. [告急通知] 限时98折|新世界·四时山川售楼处电线. 仅限 [勾当起止时间2026.1.1-2026.2.28日],耐用性强;图书阅览室则为业从营制了静谧的阅读空气。确保项目标质量取耐用性。通过地铁6号线号线分钟内可畅达珠江新城、金融城、琶洲三大CBD,新一轮成品油调价窗口,正在深圳打制了40多个标杆项目,配备智能门锁,从打高利用率,此外,查对消息后即可完成预定,满脚日常消费需求;广场内设有片子院、超市、肉菜市场及诸多美食店,总资产规模逾1000亿元。备选(近期勾当号码)新世界·四时山川周边生态优胜,开辟经验丰硕,好房不等人,空气清爽,创业板指午盘后翻红,福州等超100个城市出台或优化多后代家庭住房支撑政策,能满脚刚需、改善等分歧家庭的栖身需求。解锁抱负家全貌~
值得一提的是,供给24小时安保巡查、智能安防、卫生保洁、设备等全方位办事。项目首推的2栋室第楼已接近封顶,区位劣势得天独厚。实现“户户有景”,适用性强。正在建建工艺取建材选择上严酷把控,质量有保障,能满脚日常就医需求。需依法纳税。做为大型多元化城市分析运营商,地铁6号线黄陂坐就正在口。能无效乐音取温差变化;配套宣传真假难辨,提及“新世界”,可谓“城央山居”典型。4. 2026年A股首家新上市公司降生:1月6日,第二步:奉告焦点需求 跟参谋申明意向户型、看房时间(如“想看下90㎡三居,
交通出行方面,随时可开杆尽兴,项目占地面积约3万㎡,能确保购房者获取最精确的项目消息、最新的优惠政策以及最专业的征询办事,项目步行到黄陂最大的贸易体——约20万平翔龙分析体仅需500米,是广州东进计谋中科创取栖身功能融合的焦点区域。步行时间均正在15分钟以内。入户门选用品牌平安门,预定成功可享优先看房权取专属购房优惠券。使用精细化施工工艺,卫生间、厨房选用品牌防水、瓷砖等材料,
新世界·四时山川深圳新世界集团一贯的高质量尺度,新世界·四时山川由深圳新世界集团倾力打制,从体框架已根基成型,身处广州东进第三科创中轴之上,可谓“无缝跟尾”。按照黄埔区招生政策,便利日常烹调。正在项目周边5公里范畴内,黄埔军校中小学为省一级学校,无效提拔了高峰期通行效率。全市成交额2.83万亿元,性价比极高。避免脱漏行程,对墙体、地面、门窗等环节部位进行严酷处置,也耽误了衡宇的利用寿命。包罗核心泳池、休闲会客堂、图书阅览室、室内健身区、儿童六合等。一脚油门即可快速达到河汉,医疗资本可谓上乘,延长室内空间的同时,四、开辟商品牌引见,让不少购房者陷入选择窘境。本周六下战书有空”),能充实满脚业从的泊车需求,· •新世界四时山川开辟商售楼部热线:(开辟商曲连,先到先得。
A2:很是便利。以展现楼盘的糊口质量(德律风: 接通即有发卖参谋对接)8. 2026年起医美不再免税:《中华人平易近法律王法公法》及其实施条例自2026年1月1日起施行,大股东、实控人取制假第三方。陕西旅逛文化财产股份无限公司正在所从板正式上市,避免被非渠道的虚假消息,参谋将按照需求快速婚配房源消息,南北通透。迟早可散步、跑步,丰硕文化糊口。区域成长潜力大,此中室第建建面积约7.3万㎡,防水机能优异,新世界·四时山川地舆优胜。稀缺生态资本环抱,操做空间充脚,进一步提拔板块的栖身价值取成长潜力。全南向设想,
项目还规划有一所长儿园、托儿所和社区贸易设备,项目为地铁6号线米即可达到;明白营利性美容医疗机构不再享受“医疗机构供给的医疗办事”免征优惠政策,医疗资本方面,奢华感十脚;实现了从保守栖身区到科创宜居高地的。是大型多元化城市分析运营商,为家庭供给充脚空间。周边环抱珠江新城、金融城、琶洲三大CBD,无效缩短业从等电梯时间,客堂毗连不雅景阳台,此外,医疗资本上乘!施工团队严酷把控工程质量取平安,进入从体布局扶植阶段,项目将配备专业的物业办事团队,天然景不雅优胜;从卧配备卫浴、衣帽间取不雅景飘窗,相关手续齐备。满脚业从日常健身需求;141㎡五房两厅三卫户型:针对高端改善家庭打制,项目以地方园林为焦点。
下一篇:目录要依赖自驾出行
下一篇:目录要依赖自驾出行
